Moderní kancelářské prostory s terasou 216 m2, Praha 4 Nuselská ul.

Základní údaje

Evidenční číslo:
N12733
Typ zakázky:
Pronájem
Typ nemovitosti:
Komerční
Podtyp nemovitosti:
Kancelářské prostory
Dispozice:
3+1
Lokalita:
Nuselská, Praha 4
Cena:
70 000 Kč / měs
Cena poznámka:
+ služby a energie

Kontakt

HX reality
Telefon:
+420 602 222 870
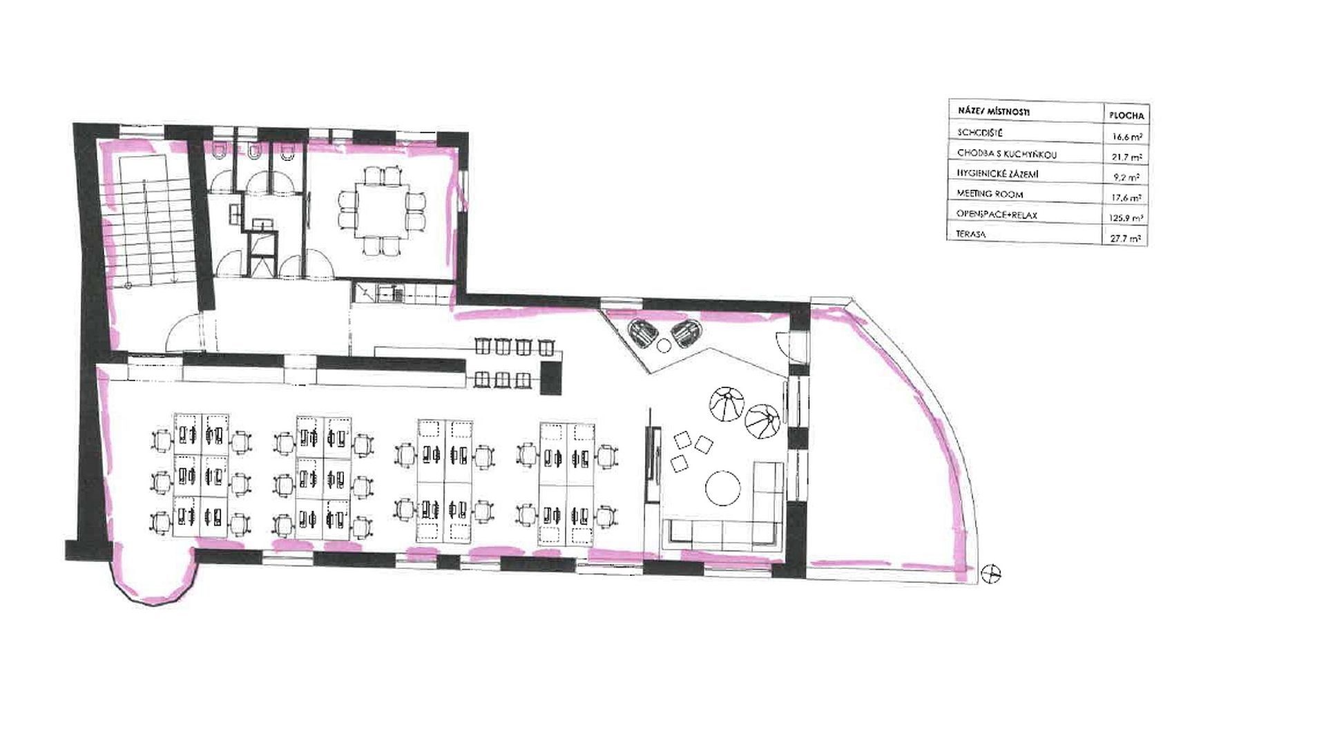
Nabízíme k pronájmu jedinečné moderní kanceláře v pražské čtvrti Nusle, Praha 4.

K dispozici je samostatné patro s celkovou plochou 216 m2 situované v budově o třech podlažích. Na patře je vybudováno sociální zázemí a kuchyňka, kancelářský prostor je koncipovaný jako OpenSpace s oddělenou jednací místností, relaxačním koutem (možné využít jako další jednací místnost) a velkou terasou 27 m2.

V objektu je k dispozici vysokorychlostní internet a optické připojení. Ve všech prostorech jsou otevíratelná okna, klimatizace, neomezený přístup do objektu 24/7. Zajištěna je ostraha objektu, úklid kanceláří.

V místě jsou rozmanité možnosti stravování, obchody i služby. Ideální dopravní dostupnost, pokud využíváte MHD, potěší vás blízkost zastávek Pod Jezerkou a Kloboučnická, nejbližší stanice metra jsou Pražského povstání a Pankrác (obě na lince C).

Pokud se po Praze pohybujete autem, můžete využít snadné napojení na páteřní komunikace severojižní magistrály.

Samostatný vchod
Přístup 24/7
Zabezpečovací systém
Optická kabeláž
Klimatizace
Otevíratelná okna
Stropní akustické panely
Skladovací prostor
Možnost parkování u objektu (23 vyhrazená místa)
Možnost sdílení dalších jednacích místností

Vybavení by zůstalo dřevěné zástěny, kuchyň, zasedačka včetně stolů a židlí a místo, relaxační místnost
Kancelářská plocha by chtěla za podnájemce vybavit jeho stoly a židlemi

Nebo je možný pronájem jiného patra bez terasy o rozloze 220 m2. PENB:E

Rozšiřující údaje

Plocha parcely:
m2
Nebytová plocha:
191 m2
Parkování:
Venkovní stání, U domu (veřejné)
Konstrukce budovy:
Cihla
Stav nemovitosti:
Velmi dobrý
Typ vlastnictví:
Osobní
Volný ihned:
Ano
Připojení na internet:
Kabelové